東京都 稲城市長峰 中古マンション|調布の不動産(一戸建て・マンション・土地)情報|渋谷不動産エージェント
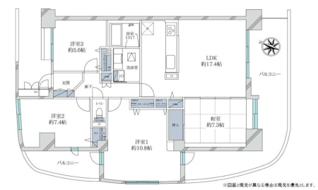
NEW 長峰杜の二番街5号棟|稲城市長峰3-3-5の中古マンション
東京都の市区町村を選択
神奈川県の市区町村を選択
調布市の町名を選択
府中市の町名を選択
世田谷区の町名を選択
狛江市の町名を選択
三鷹市の町名を選択
日野市の町名を選択
稲城市の町名を選択
多摩市の町名を選択
武蔵野市の町名を選択
相模原市南区の町名を選択
京王線の駅を選択
京王相模原線の駅を選択
小田急小田原線の駅を選択
小田急多摩線の駅を選択
JR中央本線の駅を選択
JR武蔵野線の駅を選択
JR総武線の駅を選択
JR南武線の駅を選択
JR横浜線の駅を選択
JR中央線の駅を選択
西武多摩川線の駅を選択
京王競馬場線の駅を選択
世田谷区の小学校を選択
相模原市南区の小学校を選択
武蔵野市の小学校を選択
三鷹市の小学校を選択
府中市の小学校を選択
調布市の小学校を選択
狛江市の小学校を選択
多摩市の小学校を選択
府中市の中学校を選択
調布市の中学校を選択
相模原市南区の中学校を選択
世田谷区の中学校を選択
武蔵野市の中学校を選択
三鷹市の中学校を選択
狛江市の中学校を選択
多摩市の中学校を選択
(株)渋谷不動産エージェント 〒182-0024 東京都調布市布田1-44-3 高橋ビル4階
ページ上部へ