ライオンズシティ調布 東京都調布市布田3丁目41-4|5,198万円の中古マンション|渋谷不動産エージェント
| 価格 | 5,198万円値下がり ![]() |
||||
|---|---|---|---|---|---|
| 所在地 | 東京都調布市布田3丁目41-4
この地域周辺の物件を見る |
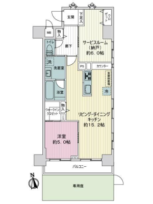
専有面積 | 58.05m2 | 築年月 | 1993年12月築 |
| 交通 |
京王線 調布 徒歩6分
|
管理費等 | 14,800円 | 修繕積立金 | 18,490円 | 所在階/階数 | 1階/地上12階建 | バルコニー面積 | - |
| 間取り | 1SLDK (-) | ||||
| 特徴 |
|
|---|---|
| セールスコメント | - |
| 採光面 | 南 | 取引態様 | 仲介 |
|---|---|---|---|
| 現況 | 空家 | 引渡し | 相談 |
| 総戸数 | 117戸 | 構造 | SRC造 |
| テラス面積 | 5.67m² | 専用庭面積 | 10.8m² |
| 駐車場 | - | 駐輪場 | - |
| 建物権利 | 区分所有 | 土地権利 | 所有権 |
| 用途地域 | - - - | 管理態様 | 管理形態:日勤 管理組合:- 管理会社:日本ハウズイング(株) |
| 情報更新日 | 2026年05月28日 | 次回更新日 | 2026年06月11日 |
| 小学校区 | 調布市立八雲台小学校 (東京都調布市) 東京都調布市立八雲台小学校学区の他の物件を見る |
中学校区 | 第七中学校 (東京都調布市) 東京都調布市立第七中学校学区の他の物件を見る |
|---|
| 価格 | 万円 | ||
|---|---|---|---|
| 年利率 | % |
||
| ボーナス払い | 返済年数 | ||
| 頭金 | 直接入力する | 万円 | |

毎月のご返済額 |
ボーナス(×年2回) |
物件価格5,198万円 |
※「ホームページを見た」と
お伝え下さい。
【物件番号:RHS-sra-r1600】
-